Leave a Message

Thank you for your message. We will be in touch with you shortly.

657 Humbert Street

$670,000
657 Humbert Street, Folsom, CA 95630
657 Humbert Street

657 Humbert Street

$670,000

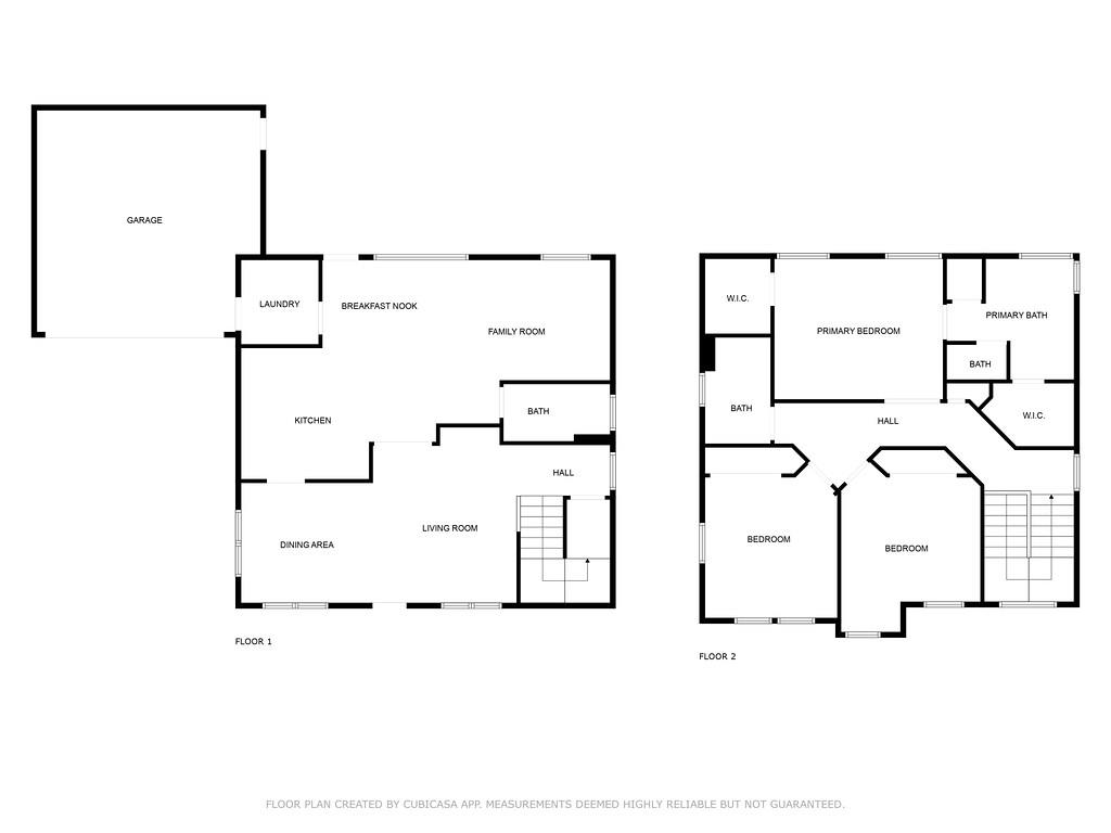
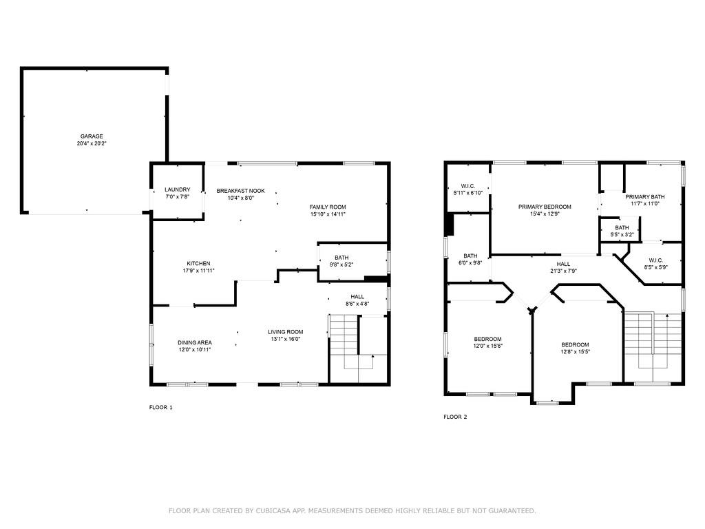
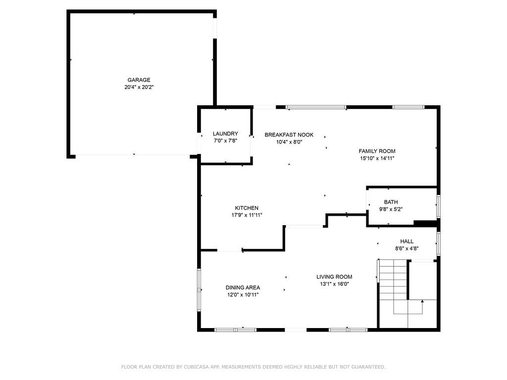
Huge Price Reduction!Welcome to this stunning, freshly interior-painted 3-bedroom, 3-bathroom home nestled in a peaceful natural setting in a Folsom's highly desirable community. Offering 2105 sq ft of thoughtfully designed living space, this home is a private retreat combining style, comfort, and serenity.Step into the formal living room, where abundant natural light and upgraded LVP flooring create a warm, inviting atmosphere. The elegant dining area flows effortlessly into the spacious kitchen, featuring a cozy breakfast nook and an open family room perfect for everyday living and entertaining. A full bathroom is conveniently located on the main level.Upstairs, brand-new upgraded carpet leads you to a luxurious primary suite with a free standing soaking tub, walk-in shower and dual sink vanity. Two additional generously sized bedrooms and a full bathroom complete the upper level.The amazing backyard is a true highlight, offering privacy, tranquil views, and a natural ambiance that's perfect for relaxing or hosting gatherings.Located in the heart of Folsom with No Mello Roos and close to top-rated schools, Hwy 50, Intel, shopping, walking/biking trails, Folsom Lake, and Historic Old Town Folsom this home offers the perfect blend of comfort, convenience, and nature.

Features & Amenities

Interior

Total Bedrooms 3
Total Bathrooms 3
Full Bathrooms 3
Flooring Carpet, Tile, Vinyl
Appliances Free-Standing Gas Range, Dishwasher, Disposal
Other Interior Features Walk-In Closet(s)

Exterior

Stories 2
Garage Space 2.0
Water Source Public
Utilities Natural Gas Available, Electricity Available
ROOF Tile
Lot Features Irregular Lot, Greenbelt
Heat type Central
Air Conditioning Ceiling Fan(s), Central Air
Sewer Public Sewer
Substructure Slab
HOA Amenities Other
Security Features Smoke Detector(s), Carbon Monoxide Detector(s)

Area & Lot

Status Sold
LIVING SPACE 2,105 Sq.Ft.
LOT SIZE 4,234 Sq.Ft.
MLS® ID 225063365
Type Residential
Year Built 2005
Neighborhood Folsom
School District Sacramento

Financial

SALES PRICE $670,000
HOA Fees $130
Zoning R1
View Virtual Tour
Folsom

Folsom

Folsom is a historic community great for locals and visitors alike.

Read more

Work With Us

We commit our energy to making selling or buying your home as easy as possible so you can live freely. Once you put us to work for you, we are your trusted advisor and biggest home advocate. We fully grasp the trust you are putting in us to lead you in the right direction.

CONTACT US